Claudia Jahnke Claudia Jahnke Claudia Jahnke Claudia Jahnke Claudia Jahnke Claudia Jahnke Claudia Jahnke Claudia Jahnke Claudia Jahnke Claudia Jahnke
Ansicht Bestand Ansicht Bestand

123456

Ansicht Bestand

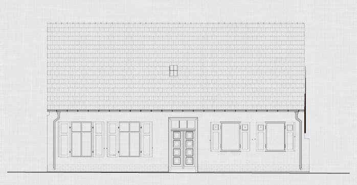
Sanierung - Weberhaus - Bauaufnahme, denkmalpflegerische Konzipierung und Planung - in Potsdam Babelsberg - für KWA - 2009

Start
© Jahnke | Impressum | Datenschutz